(Chamada para a rede fixa nacional)
(Chamada para a rede móvel nacional)
(Chamada para a rede móvel nacional)
195.000€
Referência
NS076
Natureza
Venda
Tipo de Imóvel
Terreno
Tipologia
T4
Estado
Usado
Certificado energético
Em execução
Ano
2027
Distrito
Santarém
Concelho
Benavente
Freguesia
Santo Estêvão
Código Postal
2130
Área Útil
200 m2
Área Bruta
203.63 m2
Área de Terreno
1018 m2
NS Soluções
Rua do Olival N-5,Loja 27 Rés do Chão, 2625-448, LisboaJoaquim Ferreira
966583923
(Chamada para a rede móvel nacional)
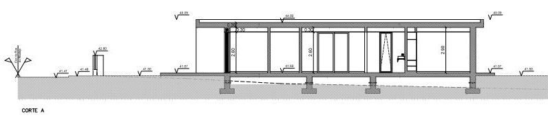
Vende-se terreno com projeto aprovado na exclusiva Herdade de Vila Nova de Santo Estêvão Apresentamos-lhe uma oportunidade única de investir ou construir a sua moradia de sonho num dos empreendimentos mais prestigiados da região. Inserido na Herdade de Santo Estêvão Golf, este terreno alia natureza, tranquilidade e sofisticação, a poucos minutos de Lisboa. >Área total do lote: 1.018 m² > Moradia T4 projetada com: 203,63 m² de área bruta de construção Piscina com 44,16 m² 404,88 m² de área impermeável 613,12 m² de área verde permeável > Distribuição Interior da Moradia Hall de entrada: 5,50 m² Sala comum ampla e luminosa: 41,35 m² Cozinha moderna: 22,25 m² Escritório: 11,30 m² Lavandaria: 6,00 m² Suite 1: 16,80 m² + WC privativo 4,86 m² Suite 2: 16,80 m² + WC privativo 4,86 m² Suite 3: 14,80 m² + WC privativo 5,74 m² > Estacionamento automóvel dentro e fora do lote > A Herdade de Santo Estêvão é reconhecida pela sua segurança, privacidade e elevada qualidade de vida, a Herdade de Santo Estêvão oferece um estilo de vida exclusivo, ideal para quem valoriza o conforto sem abdicar da proximidade à cidade. > Aqui poderá desfrutar de: Campos de golfe de referência, Paisagens naturais únicas, Ambiente tranquilo, elegante e reservado, Uma oportunidade a não perder > Este projeto foi cuidadosamente desenvolvido para proporcionar um ambiente moderno, funcional e confortável, com foco na eficiência energética, no design contemporâneo e no bem-estar familiar. > Contacte-nos hoje mesmo para mais informações ou para agendar a sua visita. > Dispomos ainda de parcerias com intermediários de crédito, prontos para o ajudar a encontrar a melhor solução de financiamento. Caso pretenda adquirir o terreno com o projeto aprovado e incluir a construção da moradia, o valor global do investimento será de 780.000 €.
| Vistas | Campo: | Sim |
|---|---|---|
| Vistas | Jardins: | Sim |
| Exposição Solar | Sul: | Sim |
| Infraestruturas | Concluídas: | Sim |
| Infraestruturas | Iluminação de rua: | Sim |
| Terreno | Residencial: | Sim |
| Acessos | Auto-estrada: | Sim |
| Acessos | Asfalto: | Sim |
| Acessos | Urbano: | Sim |
| Hall: | 5.5 m2 |
|---|---|
| Sala comum: | 41.35 m2 |
| Cozinha: | 22.25 m2 |
| Escritorio: | 11.3 m2 |
| Lavandaria: | 6 m2 |
| Quarto 1: | 16.8 m2 |
| Instalação sanitária Quarto 1: | 4.86 m2 |
| Quarto 2: | 16.8 m2 |
| Instalação sanitária Quarto 2: | 4.86 m2 |
| Quarto 3: | 14.8 m2 |
| Instalação sanitária Quarto 3: | 5.74 m2 |